fon 02236 / 94 97 93
Der Grundriss ist ebenso modern wie familiengerecht. Der Fokus liegt auf einer Großzügigkeit die trotz aller Wirtschaftlichkeit darstellbar ist. So beträgt die Raumhöhe im Erdgeschoss gut 2,78 m. Im Dachgeschoss wurde bewusst auf eine Abhangdecke verzichtet sodass hier eine Raumhöhe bis ca. 4,50 m erreicht wird.
Im Erdgeschoss befindet sich das „Wohnzentrum“ des Hauses. Hier wird in der offenen Küche gekocht, gegessen und gelebt. Ein hochwertiges WC und eine Abstellkammer (auch Kinderwagengarage genannt) runden das Raumangebot im Erdgeschoss ab. Von hier aus haben Sie Zutritt zur Terrasse und dem eigenen Gärtchen.
Im Obergeschoss befinden sich neben dem Tageslichtbad zwei weitere Zimmer die als Schlaf-, Arbeits- oder Spielzimmer genutzt werden können. Auf Wunsch kann das größere Zimmer mit Südausrichtung auch in zwei helle Zimmer aufgeteilt werden.
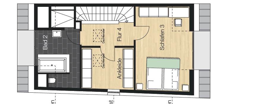
Das offen gestaltete Dachgeschoß ist mit einer Deckenhöhe bis zu 4,50 m, seinem großzügigen Bad und dem Ankleidezimmer sicherlich ein Highlight dieser Immobilie.
Die bodentiefen Fenster in Südausrichtung, die großzügigen Dachgauben und die Dachflächenfenster ermöglichen eine optimale Beleuchtung der Räume mit Sonnenlicht.
Das Haus verfügt über zwei hochwertige Tageslicht-Badezimmer. Das großzügige „Masterbad“ im Dachgeschoss hat neben der bodengleichen Dusche eine Badewanne und ein separates WC. Im Duschbad des 1. OG ist das WC ebenfalls separiert. Die Sanitärobjekte von der Firma Duravit „STARCK 3“ wurden von dem Star Designer Philippe Starck entworfen.
WIE AUF SIE ZUGESCHNITTEN
Haus Nr. 26: Download
Haus Nr. 28: Download
Haus Nr. 28a: Download
Haus Nr. 30: Download
Haus Nr. 32: Download
ALLE
DETAILS
zum Download